
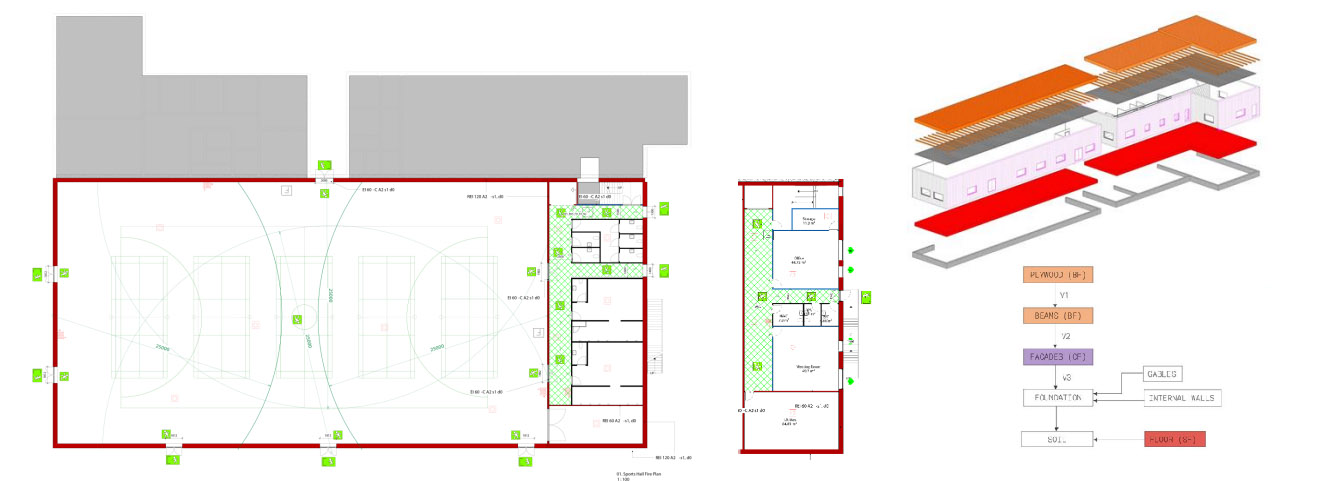
Fire Escape Routes and Static Anylsis ○ Sports Hall

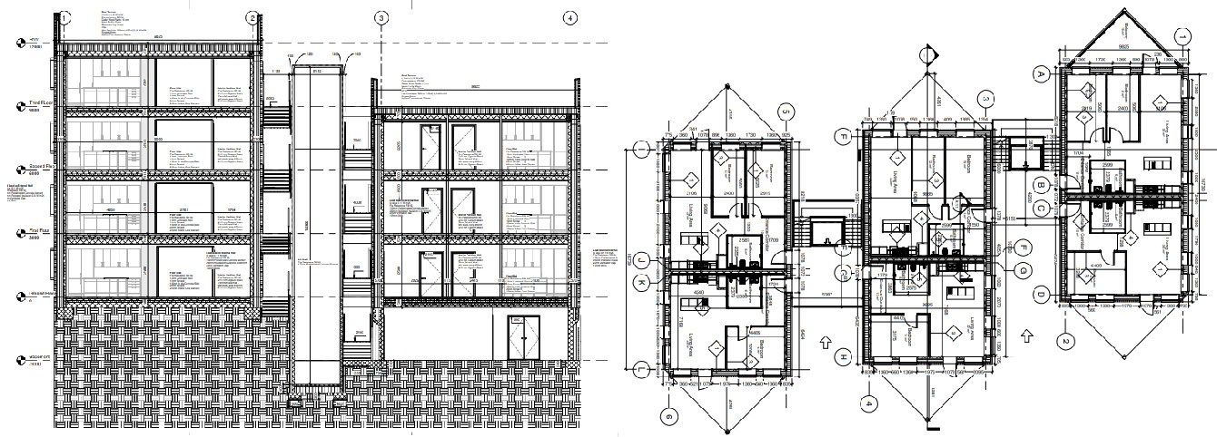
Section and Floorplan Produced for Planning Application ○ Residential Development
Revit Projects completed as part of a group assignment at VIA, Denmark
Fire Escape Routes and Static Anylsis ○ Sports Hall
Section and Floorplan Produced for Planning Application ○ Residential Development